0
Zum Inhalt springen
ralph architektur
Arbeit
Büro
Menü öffnen
Menü schließen
ralph architektur
Arbeit
Büro
Menü öffnen
Menü schließen
Arbeit
Büro
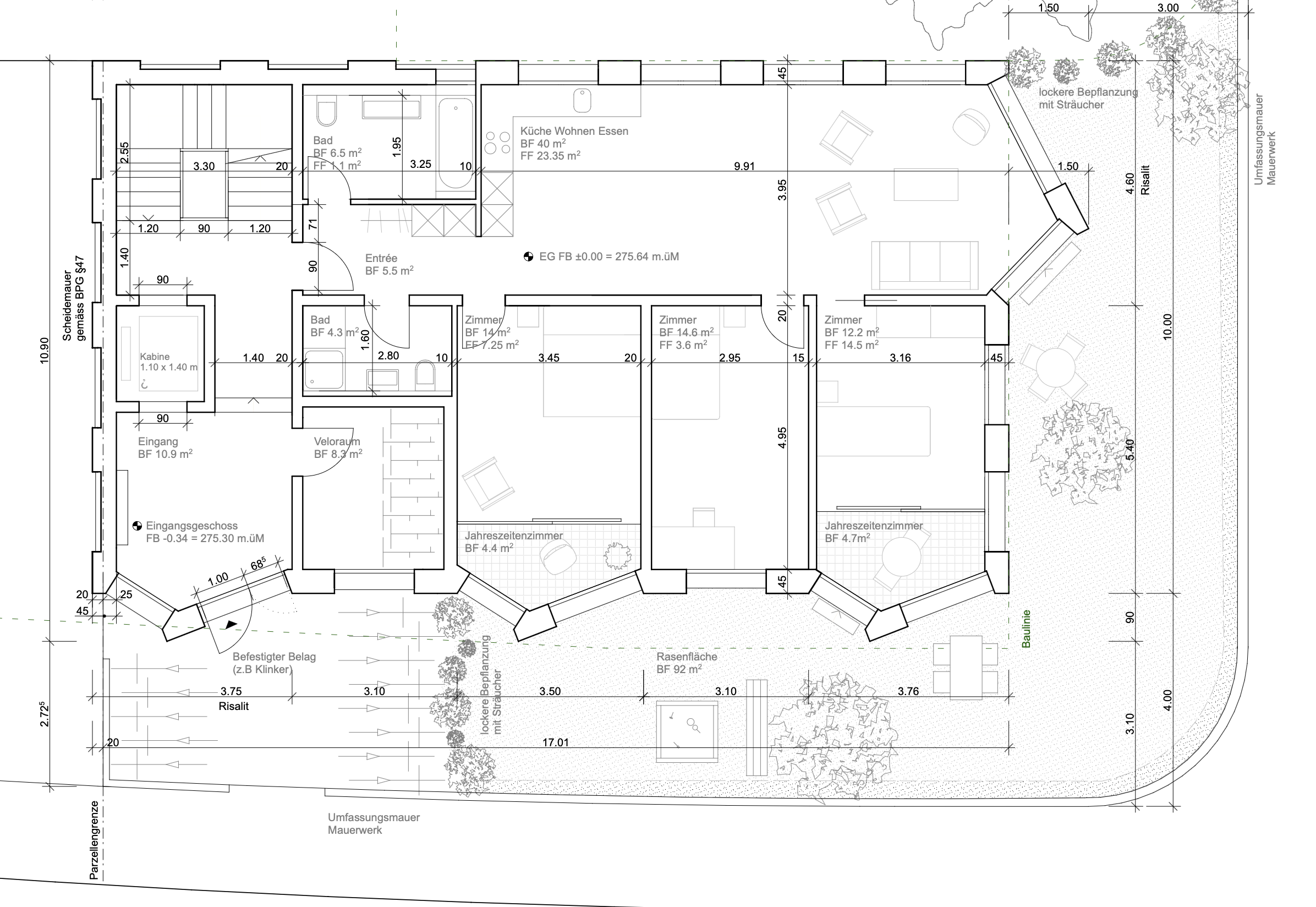
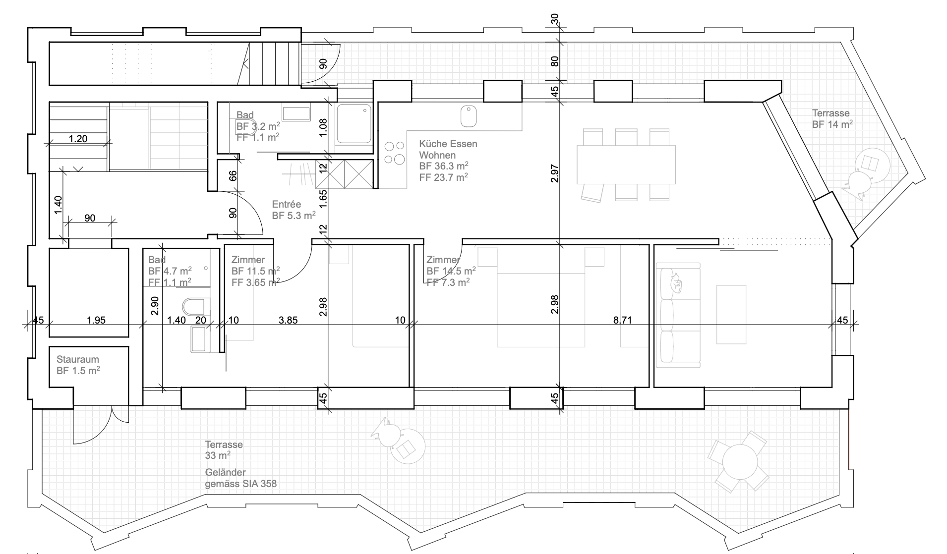
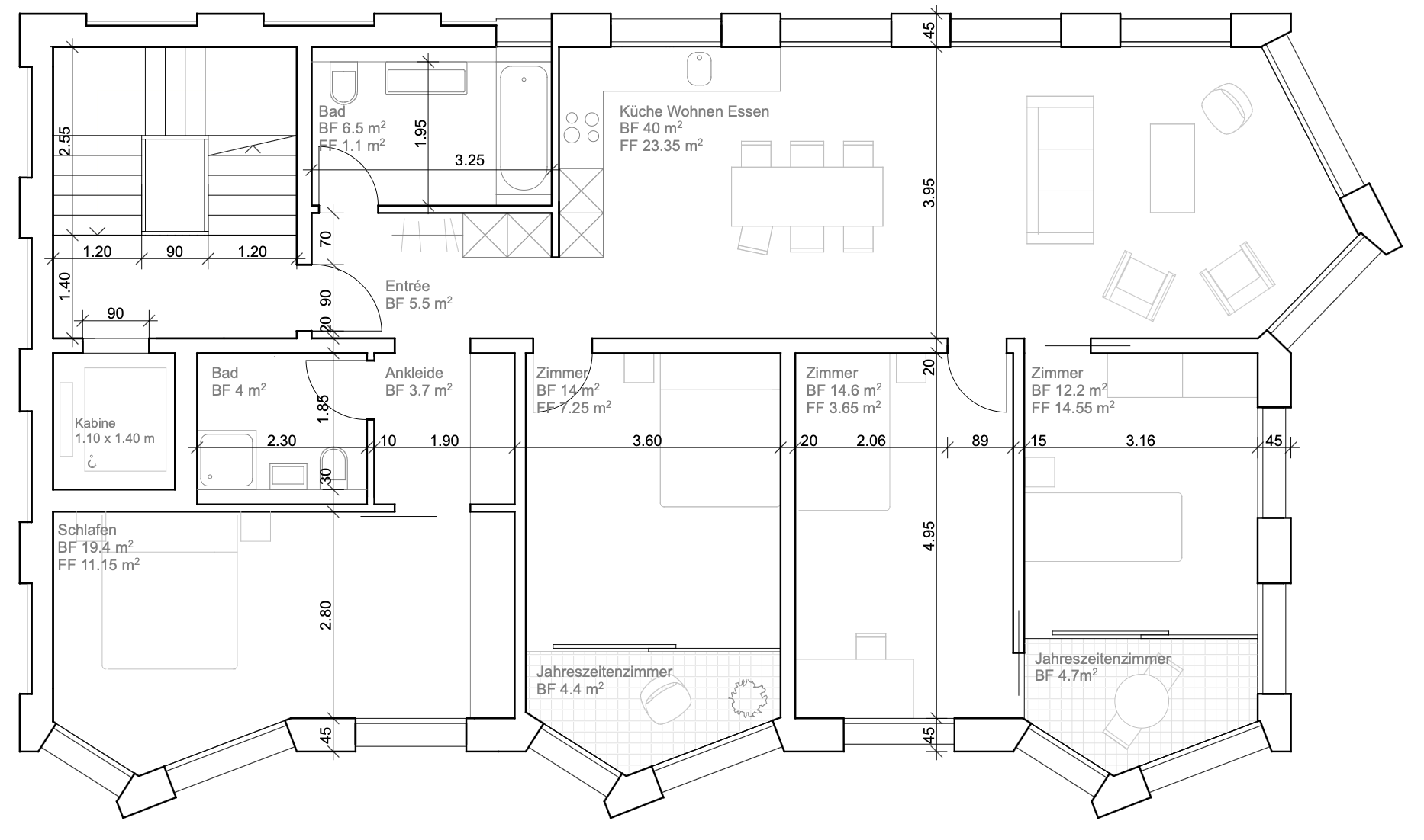
Oltingerstrasse
Vorprojekt, MFH
Zurück
Zurück
Potentialstudie Tribünenanlage Schützenmatte, Basel
Weiter
Weiter
Um- und Anbau Wohnhaus, Basel