0
Zum Inhalt springen
ralph architektur
Arbeit
Büro
Menü öffnen
Menü schließen
ralph architektur
Arbeit
Büro
Menü öffnen
Menü schließen
Arbeit
Büro
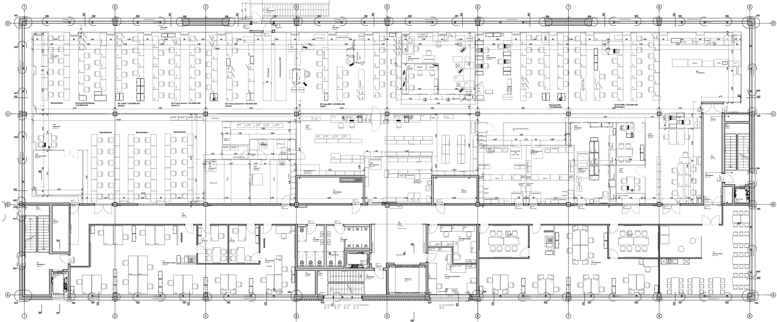
Reinraumanlage
Planung und Ausschreibung
Zurück
Zurück
Only-Store Luzern